富山市 五福の賃貸売買物件のことなら宮宏不動産
トップページ
賃貸
売買
駐車場
会社案内
アクセス
お問い合わせ
各種申込書
For Rent
賃貸物件
トップ
賃貸物件
貸店舗・貸事務所
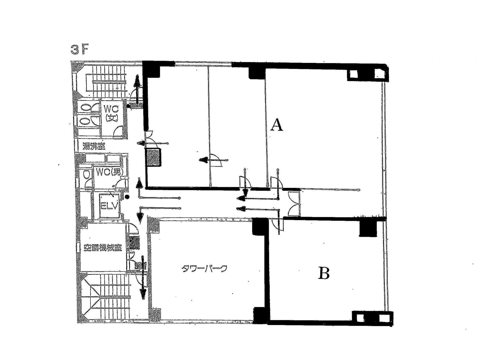
朝日大手町ビル3-A
TOP
外観
間取
物件
情報
部屋
情報
地図
朝日大手町ビル3-A
|
富山市大手町
賃料
20.6万円
共益費/管理費等
123,783円
敷金/礼金
3ヵ月/1ヵ月
所在地
富山市大手町
交通
JR富山駅 徒歩15分
富山地方鉄道バス 総曲輪停 徒歩1分
お問い合わせ
メールで問い合わせ
TEL:
076-442-7700
営業時間 9:00〜17:00
定休日 土・日・祝 / 祝祭日 / 夏季休業 / 年末年始
富山市中心部まちなかのビルです。
国道41号線沿いの総曲輪バス停前、124㎡の広い事務所です。
外観・間取り
物件情報
物件名
朝日大手町ビル3-A
住所
富山市大手町3-9
建築構造
鉄骨造
階数
3階
学区
芝園小学校、芝園中学校
築年月
昭和61年12月
沿線・駅
JR富山駅
部屋情報
敷金
562,650円
礼金
187,550円
鍵交換
費用
(税込)
-
仲介手数料
(税込)
206,305円
火災保険
別途
契約時
費用
956,505円
賃料(税込)
206,305円
共益費
123,783円
セキュリティ費
別途
月合計額
330,088円
備考
電気・ガス・水道料は貸主から毎月按分請求あります。
現況
空
入居
可能日
即日
契約期間
2年
保証会社
-
連帯
保証人
要
方角
-
専有面積
124㎡
駐車場
なし
更新料(税込)
円
駐輪場
なし
ベランダ
なし
備考
内装工事は借主のご負担です。
職種相談。
設備
水道
公営
ガス
都市ガス
トイレ
あり
共同
照明
有り
冷暖房
有り
セキュリ
ティー
その他(備考をご確認ください)
エレベーター
有り
共用給湯室
有り
共用喫煙所
有り
備考
富山県綜合警備保障株式会社との警備契約必須
地図
周辺環境
北陸銀行越前町支店
大和 富山店
ユウタウン総曲輪
富山市民プラザ
メールで問い合わせ
TEL:
076-442-7700
国道41号線沿いの総曲輪バス停前、124㎡の広い事務所です。